Design 2A #4951-007

Starting at $1,607
1,183 Sq. Ft. | 2 Bed | 2 Bath
Available Jun 4

Features

  • Kitchen and Bath

    • Appliances Stainless Steel
  • Home Attributes

    • Washer Dryer
  • Premium Features

    • Patio
  • 2D Diagram
  • 2D Diagram Furnished
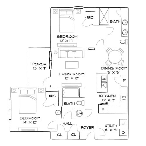
Villages at Raleigh Beach - Raleigh, NC - Diagram

Design 2A

This two bedroom floor plan features a comfortable layout with a central living room that opens to a private porch, creating an inviting shared living space. The home includes two generously sized bedrooms with walk in closets, two full bathrooms, a dedicated dining area, a well appointed kitchen, and a utility room with in unit washer and dryer for added convenience.

Villages at Raleigh Beach - Raleigh, NC - Furnished Diagram

Design 2A

This two bedroom floor plan features a comfortable layout with a central living room that opens to a private porch, creating an inviting shared living space. The home includes two generously sized bedrooms with walk in closets, two full bathrooms, a dedicated dining area, a well appointed kitchen, and a utility room with in unit washer and dryer for added convenience.

*Apartment prices, availability and terms are subject to change without notice. Apartment photos and floor plans are for illustrative purposes only. Actual square footage, layout, and property or apartment features may vary.